Stierlen - kundenbezogene Flexibilität

Die Spüllösungen von Stierlen sind in jeder Anlage einzigartig, denn sie richten sich nach Ihren Anforderungen und Wünschen.

Spitzentechnologie für glänzende Hygiene

Automatische Anlagen

Dank angepassten Konfigurationsmöglichkeiten unserer Anlagen planen und fertigen wir nach Kundenwunsch auch halbautomatische Spülanlagen. Diese können aus mehreren Bandtransportspülmaschinen, sowie Tablett- und Besteckspülmaschinen bestehen. Die Bestecke werden dabei durch einen Besteckabhebemagnet vom Tablett automatisch der Besteckspur zugeführt, während das Tablett in die Tablettspur eingetaktet wird.

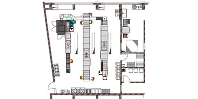
Beispiel eines Klinikums

Die folgenden Abbildungen zeigen eine Spülanlage für 600 - 800 Essen in einer Klinik

1

Die Patienten werden mit tablettierten Speisen über Tabletttransportwagen versorgt. Bei der Rückkehr werden die Tabletts aus den Wagen entnommen und auf das Schmutzgeschirrrückgabeband gesetzt. Das Geschirr wird 

2

vom vorbeilaufenden Tablett über die abgesenkte Zulaufbahn in eine Bandtransportspülmaschine eingetaktet. Tabletts und Bestecke laufen weiter unter einem Besteckabheber hindurch, der die Bestecke abhebt.

3

Tabletts und Bestecke werden dann automatisch in die Tablett- und Besteckspülmaschine eingetaktet. Die Tabletts werden automatisch abgestapelt. Das Besteck kann direkt absortiert werden oder wird über eine Rutsche einem Besteckkorb zugeführt.

 Beispiel einer Betriebsgastronomie

Das hier abgebildete Beispiel zeigt die Anlage für 800 bis 1.200 Essen in einer Werkskantine.

 

1

Auch hier ist eine Bandtransportspülmaschine mit abgesenkter Zulaufbahn im Einsatz, jedoch als Breitbandmaschine. Das Transportband ist mit einer separaten Besteckspur ausgestattet. Die Bestecke werden automatisch abgehoben und der Besteckspur zugeführt.

2

Die Bandtransportspülmaschine ist für den Einbau eines Direktreinigersprühsystems mit einer Neutralzone ausgestattet. Die Tabletts laufen weiter zur Tablettspülmaschine und werden nach der Trocknung automatisch abgestapelt. 

3

Beim Staplerwechsel sorgt eine automatische Tablettzwischenstapeleinrichtung für einen unterbrechungsfreien Spülbetrieb. Engpässe bei der Tablettrückgabe werden vermieden.

 Beispiel einer Mensa

Das hier abgebildete Beispiel zeigt eine Spülanlage einer Mensa mit 1.200 -1.800 Essen pro Tag. 

 

1

Aufgrund der großen Essensteilnehmerzahl können an zwei Aufgabestationen die Tabletts aufgegeben werden. Über Fördertürme und Weiche werden die Tabletts dann der Spülanlage zugeführt. 

2

Zunächst werden die Gläser abgenommen, in Körbe gesetzt und in einer Korbtransportmaschine gespült. In Verbindung mit einer Osmoseanlage wird bei den Gläsern damit ein glänzendes Spülergebnis gewährleistet.

3

Die Teller und Schalen können durch die abgesenkte Zulaufbahn an vier Stationen aufgegeben werden. Die Tabletts und die Bestecke laufen wie beim Beispiel Krankenhaus durch eine Tablett- und Besteckspülmaschine.

Vorteile einer kundenbezogenen Anlage

Fexibilität

Individuelle Zusammenstellung der perfekten Anlage

Tabletts

Die Tabletts werden automatisch gestapelt

Effizienz

Engpässe bei der Tablettrückgabe werden vermieden

Variation

Bei großer Essensteilnehmerzahl können an zwei Aufgabestationen die Tabletts aufgegeben werden.

zuverlässige Leistungdurch perfekte Verarbeitung
langjährige ErfahrungMarktpräsenz seit 1889
100% Qualitätzertifizierte Markenprodukte
Kompetenter Servicemehr als 20 Vertriebs-& Servicepunkte